Opole, Zakrzów

Dom na sprzedaż

Opis nieruchomości

NOWA CENA!!! Zapraszamy do zapoznania się z ofertą domu, który oferuje wyjątkową możliwość zamieszkania dla dwóch rodzin lub wykorzystania jednego mieszkania jako przestrzeni wynajmu lub domu dla gości. Ze względu na lokalizację może stanowić również dogodną siedzibę dla firmy


Po przekroczeniu progu, znajdujecie się w przestronnym wiatrołapie, który prowadzi do dwóch niezależnych wejść do mieszkań.
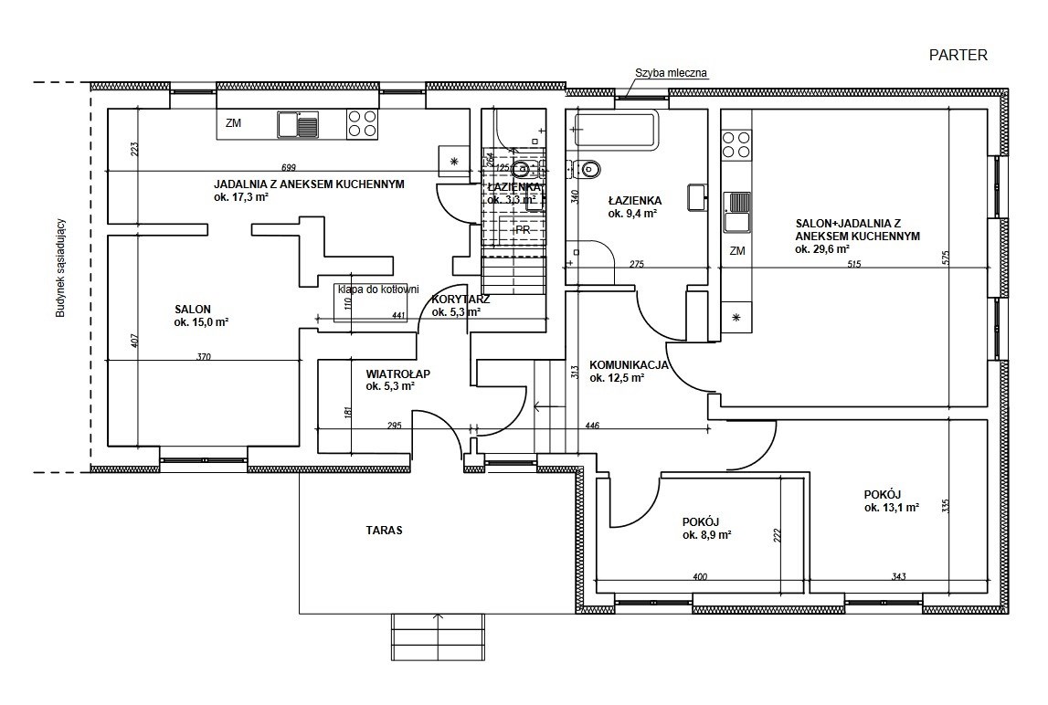
I mieszkanie składa się z parteru i piętra. Na parterze salon, kuchnia z jadalnią oraz łazienką, na piętrze bardzo duża sypialnia (klimatyzacja zewnętrzna) i jeden pokój. Podłogi parterowej częśći wyłaożone kaflami -ogrzewanie podłogowe, na piętrze podłogi pokryte panelami i ogrzewanie z grzejników. Kuchnia w pełni wyposażona (zmywarka, płyta indukcyjna, piekarnik - kuchnia na wymiar). W tej części znajduje się również piwnica, w której zlokalizowana jest kotłownia - ogrzewanie na olej opałowy (zbiorniki 1500 L). Łazienka z kabiną prysznicową, czas przebudowy i wykończenia tej części 2010 rok). Powierzchnia ok. 85 m2).
II mieszkanie składa się z dużego salonu z aneksem kuchennym, dwóch pokoi, dużego korytarza (może być wykorzystany jako kolejne pomieszczenie) oraz dużej łazienki (kabina prysznicowa i wanna). W łazience i części kuchennej oraz korytarzu kafle, w pozostałej części panele. Kuchnia wyposażona w zmywarkę oraz kuchenkę z piekarnikiem). Ogrzewanie podłogowe w łazience, w reszcie pomieszczeń grzejniki. Ta część nieruchomości została dobudowana i wykończona w 2019 roku.
Każde z mieszkań posiada własny salon z wygodną przestrzenią do relaksu oraz jadalnię, gdzie można spędzać czas przy wspólnych posiłkach. Duże okna w salonach zapewniają dostęp do naturalnego światła i pięknych widoków na otaczającą przyrodę.
Spokojna okolica, ruch tylko lokalny (ślepa ulica) do centrum 20 minut spacerem, w pobliżu przystanek MZK, sklep, szkoła).
Przed wejściem duży taras, na działce znajduje się drewniany domek na narzędzia. Budynek ocieplony w całości.
Istnieje możliwość połączenia dwóch mieszkań w jedną całość (możliwość rozbiórki segmentowej ściany salonu z kuchnią w dobudowanej części i w jej miejsce wstawienia bramy garażowej (taki był pierwotny cel rozbudowy - zwiększenie powierzchni domu o dwie sypialnie, dużą łazienkę oraz garaż).

Oba mieszkania posiadają w pełni wyposażone kuchnie, z nowoczesnymi urządzeniami oraz wystarczającą ilością przestrzeni do przechowywania. Sypialnie są przytulne i komfortowe, zapewniając prywatność i spokojny sen po dniu pełnym aktywności.

Na zewnątrz, dom otoczony jest przestronnym ogrodem, gdzie mieszkańcy mogą cieszyć się świeżym powietrzem i relaksować na świeżym powietrzu. Prywatne patio lub taras w każdym z mieszkań stanowią doskonałe miejsce do grillowania czy odpoczynku na świeżym powietrzu.

Dodatkowo, na posesji znajduje się wystarczająco dużo miejsca parkingowego dla obu rodzin oraz dodatkowa przestrzeń do przechowywania, na przykład w garażu.
Istnieje możliwość zamontowania kominka w budyku.

Ten dom z dwoma niezależnymi mieszkaniami to idealne rozwiązanie dla rodzin wielopokoleniowych lub tych, które poszukują inwestycji generującej dodatkowe dochody poprzez wynajem. Oferuje on komfort, funkcjonalność oraz mnóstwo możliwości dla wszystkich jego mieszkańców.

Nota prawna

Opis oferty zawarty na stronie internetowej sporządzany jest na podstawie oględzin nieruchomości oraz informacji uzyskanych od właściciela, może podlegać aktualizacji i nie stanowi oferty określonej w art. 66 i następnych K.C.

Szczegóły oferty

Symbol oferty MMN-DS-1451
Powierzchnia 170,00 m²
Powierzchnia działki 400 m²
Liczba pokoi 7
Rodzaj domu bliźniak
Standard
Liczba pięter w budynku 1
Okna PCV
Instalacje częściowo wymienione
Zagosp. działki zagospodarowana
Ukształtowanie działki płaska
Kształt działki prostokąt
Pokrycie dachu blacha
Stan budynku do odświeżenia
Podpiwniczenie częściowo podpiwniczony
Ogrodzenie działki siatka
Rok budowy 2010
Ogrzewanie olejowe
Przystosowania dla niepełnosprawnych tak

Lokalizacja

Kalkulator kredytowy

PLN
%
Wysokość raty

Kalkulator kosztów

PLN
PLN
PLN
PLN
PLN
PLN
%
PLN
Podatek od czynności cywilno-prawnych
Taksa notarialna (opłata notarialna)
VAT od taksy notarialnej (opłaty notarialnej)
Wniosek do WKW
VAT od wniosku do WKW
Prowizja agencji nieruchomości
VAT od prowizji agencji nieruchomości
Wypisy aktu notarialnego - około
RAZEM (cena + opłaty)

Podobne oferty

dom na sprzedaż - Opole, Śródmieście

dom na sprzedaż

Opole, Śródmieście
4 pokoje 140,00 m2 5 357,14 zł/m2
dom na sprzedaż - Opole, Wróblin

dom na sprzedaż

Opole, Wróblin
3 pokoje 100,00 m2 7 900,00 zł/m2
nowa oferta
dom na sprzedaż - Opole, Groszowice

dom na sprzedaż

Opole, Groszowice
6 pokoi 187,00 m2 5 080,21 zł/m2

Napisz do nas

Proszę wypełnić to pole
Proszę wypełnić to pole
Proszę wypełnić to pole
Proszę wypełnić to pole
Trwa wysyłanie...

Ta strona wykorzystuje pliki cookies w celach statystycznych oraz w celu dostosowania naszych serwisów do indywidualnych potrzeb klientów. Zmiany ustawień dotyczących plików cookie można dokonać w dowolnej chwili modyfikując ustawienia przeglądarki. Korzystanie z tej strony bez zmian ustawień dotyczących cookies oznacza, że będą one zapisane w pamięci urządzenia.

rozumiem